地 址: 重庆市九龙坡区金科机电城D区52幢4号
电 话: 15021669209
传 真: 023-68662111
邮 箱:zkfvalve@163.com
网 址:www.zkfcq.com
联系人:洪经理
一、产品概述
气动法兰闸阀是具有气动执行机构(双层气缸,并带有缓冲机构)和手动及其保护机构(手动和可自锁的气动-手动转换装置)的低支架明杆气动闸阀。该阀由于采用双层气缸结构,其与单气缸式气动闸阀相比,提升力增大了一倍。这就从根本上解决了单气缸气动闸阀的某些阀体内楔死而打不开的弊病。而且,由于气动闸阀具备缓冲机构,能有效地减速轻了关闭不锈钢气动阀门时,由于活塞下行冲击而造成的阀板车密封面和阀体密封面的磨损,同时,也能避免闸板卡死的现象。
气动闸阀的执行机构具有正、反两种作用功能,故阀的开、关方式有气开、气关两种作用方式。气动闸阀采用金属接触式独特结构、动作可靠,具有极高的切断性能,比常规的切断阀优越。气动闸阀具有优良的切断性能,在工业领域得到广泛应用。气动闸阀性能可靠、操作切换和维修方便,广泛应用于石油、化工、海运等部门广泛用于对各类介质控制。
二、产品特点
1、气动闸阀配有气动执行机构和手动机构。
2、闸阀执行器采用双层气缸结构,它与单气缸式气动闸阀相比,提升力增大了一倍。
3、解决了单气缸式气动闸阀的某些阀板在阀体内楔死而打不开的弊病。
4、具备缓冲机构,能有效地减轻关闭阀门时由于活塞下行冲击而造成的阀板密封面和阀体密封面的磨损,同时也能避免闸板卡死的现象。
5、密封性能非常好,允许泄漏量达到10-8×KV。
6、使用范围广,温度可由-196℃ - 600℃,口径40mm - 600mm。阀座有平行、60°V型切口和90°V型切口三种,适应不同使用场合需要。
7、气动闸阀阀体可用夹套形式保温,用以介质冷却后易堵塞,凝结或结焦场合使用。
三、主要技术参数
公称通径(mm)
40
50
80
100
125
150
200
250
300
350
400
450
500
600
额定KV值
170
270
510
940
1400
2200
3500
8500
9600
13000
17000
25000
27000
38000
公称压力
PN1.6Mpa、PN4.0Mpa、PN6.4Mpa
活塞直径(mm)
120
160
280
360
420
540
操作压力
0.3Mpa-P0.5Mpa
介质温度
标准:-20℃-250℃ 高温:250℃-500℃ 低温:-196℃--20℃
允许泄漏量
10-8×KV
流量特性
近似直线
动作方式
继续、连续(配阀门定位器)
四、结构特点
长期以来市场上使用的一般闸阀普遍存在着漏水或生锈现象,本企业引进欧洲高科技橡胶及阀门制造技术所生产的弹性座封闸阀,克服了一般闸阀密封不良,生锈等缺陷,弹性座封闸阀利用弹性闸板产生微量弹性变形的补偿作用达到良好的密封效果,该阀具有开关轻巧、密封可靠、弹性记忆佳及使用寿命等显著优点。可广泛用于自来水、污水、建筑、石油、化工、食品、医药、轻纺、电力、船舶、冶金、能源系统等体管线上作为调节和截流装置使用。
五、性能参数
适用介质
适用温度(℃)
材料
阀体、阀盖
阀座、闸板及密封圈
阀杆
填料
气缸
水、蒸汽、油品等
≤350
碳素钢
堆焊铁基合金
铬不锈钢
柔性石墨
无缝钢管
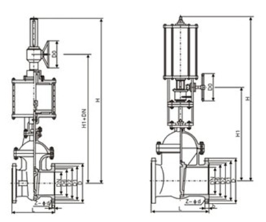
六、主要外形及尺寸
DN
PN
L
H
h
A
C
PN16
675
255
PN64
685
800
340
310
240
850
370
325
1020
415
1085
455
1195
515
1460
580
550
1575
645
1890
810
650
440
2070
900
700
2350
975
750
2500
1073
620
2930
1302